Может ли вода из водостока разрушить поверхность отмостки
Как показывает практика, вода, стекающая из водостока после прохождения дождей или таяния снега, действительно отрицательно влияет на отмостку. Влага постепенно разрушает тротуарную плитку, добираясь до отмостки. Несмотря на свойство водонепроницаемости, покрытие вокруг фундамента все равно медленно разрушается под действием скапливаемой воды. В итоге через несколько лет приходится проводить реставрационные работы.
Во избежание описанной проблемы нужно грамотно продумать размещение водостока. Длина самой трубы должна быть больше ширины отмостки, чтобы вода стекала за пределы покрытия.
Угол наклона — что это такое?
Уклон отмостки — это отношение разницы по высоте 2-х точек, верхней и нижней, к расстоянию между ними.Уклон может устанавливаться в градусах или измеряться в процентах. При разработке проекта отмостки обычно уклон обозначается в процентах, чтобы не делать ошибок в расчетах и монтаже.
При проверке уклона, с тем чтобы не выполнять трудоемкие математические подсчеты разработали особый инструмент — уклономер. На рейку укрепляется особая рамка, с маятником внутри, на котором расположен груз и указатель.
Рейку ставят на горизонтальном участке конструкции и по указателю на шкале устанавливают числовое значение в градусах, что позволяет легко перевести градусы в % по таблицам от 1 до 10.
Для чего он нужен?
Уклон отмостки — очень существенная характеристика, от которой зависит функциональность защитного элемента. При обильных природных осадках, если вода не будет отводиться, она сможет поступать к фундаменту через рядом расположенный грунт, что постепенно приведет его и цоколь к деформации.
Можно ли обойтись без него?
Очень маленький уклон выполнять запрещено, в особенности на мягких отмостках, а большой угол зимой будет аварийным из-за обледенения. Огромные негативные последствия будут у дома с отмосткой без уклона, возведенного на пучинистом грунте.
В зимнее время грунт пропитается водой, которая будет расширяться при замерзании, что создаст неравномерно распределенное давление на конструкционных элементах.
Наиболее распространенные последствия в нарушении функциональности дома при отсутствии уклона отмостки:
- подтопление цоколей и техподполий;
- появление на стенах биозагрязнений, повреждающих несущие конструкции и вызывающих серьезные болезни у людей;
- повреждение внешней и внутренней отделки помещений;
- разрушение опор строения, с последующим снижением несущей способности, с возникновением недопустимых деформаций.
Сколько составляет?
Уклон конструкции устанавливают в зависимости от принятого стройматериала:
- Для щебеночных разновидностей в пределах от 5 до 10%, к примеру, при ширине основания в 1 м уклон устанавливается от 5 до 10 градусов.
- При укладке наружного слоя из асфальтобетонных материалов этот показатель уменьшается от 3 до 5%.
Застройщик должен понимать, что значит принятый уклон. К примеру, уклон для конструкции, имеющей бетонное финальное покрытие 5%, значит, что на 1 метр ширины высота изменяется на 0,05 м.
Важность правильного расчета
В том случае, если будут сделаны ошибочные расчеты слоев отмостки, она может быть узкой, абсолютно бесполезной и неспособной защитить фундамент.
При нарушении технологии заливки, в скором времени поверхность покроется трещинами и будет пропускать атмосферную воду к фундаменту дома.
Также несоблюдение уклона конструкции от стены приведет к образованию луж у основания объекта. Отсутствие утеплительного слоя при отрицательных температурах приведет к вспучиванию грунта, разрушающего фундамент.
Кроме строгого выполнения технологической карты производства бетонной отмостки и соблюдения СНИП по минимальным размерам слоев, требуется особый уход за бетонным покрытием в течении 7-8 дней после укладки в опалубку. Для того чтобы поверхность при высыхании не трескалась, нужно постоянно ее смачивать.
Много важной и полезной информации о возведении бетонных отмосток найдете в этом разделе
Примеры хорошо сделанной жесткой отмостки
Для полного понимания темы необходимо также рассмотреть жесткую отмостку, которая изготавливается следующим образом:
- выбирается грунт;
- к наружной стороне заложенного фундамента прикрепляется гидроизоляция. Далее гидроизоляционный материал изгибается по горизонтали. В итоге должна получиться температурная складка;
- после выполнения вышеуказанных манипуляций на гидроизоляцию нужно уложить слой песка толщиной не менее 20 см и тщательно утрамбовать его;
- приступить к укладке синтетического теплоизоляционного материала. Это ЭППС — пенополистирол с отличными эксплуатационными качествами, используемый для теплоизоляции фундаментов;
- на данном этапе производится укладка армированного бетона толщиной до 15 см;
- на финальной стадии останется выполнить монтаж керамогранита.
Нормы СНиП к слоям
При заливке отмостки необходимо учитывать множество требований, которые должны соответствовать СНиП (СНиП 2.02.01-83) и СП 82.13330.2016. Это устройство, уклон, высота слоев, глубина траншеи и многие другие моменты строительства.
Также есть несколько правил по изготовлению:
- конструкция должна плотно прилегать к зданию;
- уклон не более 10%;
- каждый слой необходимо делать ровным;
- бетон должен соответствовать стандарту, который используют для асфальтирования дорог (на нем не должны присутствовать искривления, пузыри и другие дефекты);
- для уклона нужно сделать густой раствор, так он будет меньше растекаться;
- грунт под пирогом необходимо делать уплотненным;
- между стеной дома и отмосткой должен присутствовать компенсационный слой, который будет защищать от перепадов температуры и дальнейших трещин;
- если по конструкции будут ходить, то слой бетона должен на 5 см превышать стандартный.
Все эти правила необходимо выполнять, чтобы отмостка не развалилась через полгода. Если будут трещины или она неплотно будет прилегать к зданию, то могут возникнуть дефекты.
Последствия несоблюдения правил возведения
Отмостка выполняет роль защиты фундамента от попадания снега, влаги и от промерзания. Но это при условии, что соблюдены все правила и к созданию подошли с умом. В противном случае все это может иметь печальные последствия:
-
Одной из главных ошибок является неправильный расчет ширины пирога. Если дорожка будет слишком узкой, то перестанет выполнять свою функцию и вода с крыши начнет размывать грунт. Ширина должна быть больше свеса кровли минимум на 25 см.
- Второй ошибкой будет создание слишком маленького уклона, т.к. его необходимо делать не меньше 10%. В противном случае там будет скапливаться вода, а отмостка не сможет убирать лишнюю влагу.
- Третья ошибка – отсутствие утепления. Фундамент может промерзнуть и пойти трещинами по всему периметру.
- Крайняя ошибка – отсутствие правильной защиты от воды. Она попадет внутрь и также разрушит фундамент.
При возведении конструкции нельзя сильно экономить, так как это может привести к нежелательным последствиям. Лучше приобрести качественные материалы и нанять хороших мастеров.
Самая важная и полезная информация по строительству отмосток собрана в этом разделе.
Фундаментные чертежи и планы в разрезе
Графические документы, составляемые при проектировании плитного фундамента, представляют собой планы и чертежи, которые дают подробную информацию о планируемом объекте, а именно:
- габаритах;
- форме;
- осях;
- размерах слоев;
- схеме армирования;
- вариантах тепло- и гидроизоляции;
- схемах закладки инженерных коммуникаций.
Ниже представлены примерные планы плитного основания:
Вид сверху:
В разрезе:
Например, на схеме ниже отображена схема армокаркаса, где:
- Арматурные стержни класса А3, диаметром 12-16 мм, шаг – 200 мм.
- Арматурные стержни А3 диаметром 8 мм, размер ячейки 400х400 мм.
- Защитный слой бетона толщиной 35 мм.
План коммуникаций помимо общей схемы должен в обязательном порядке отражать все диаметры инженерных линий, чтобы давать представление о размерах вводных отверстий для строителей:
Бетонная отмостка вокруг дома
Самое широко распространенное покрытие — бетонное. Оно получается самым недорогим. Традиционно подстилающий слой состоит из пролитого утрамбованного песка (10 см) песка, поверх которого уложен уплотненный щебень (10 см). Как уже писали выше, такая схема нормально работает на хорошо дренирующих грунтах.

Если вокруг дома глина или суглинки, подстилающий слой делайте из родного грунта. Чтобы уменьшить эффект пучения и избежать растрескивания поверх уплотненного грунта насыпьте 10 см песка, а на него уже укладывайте бетон. Так бетон будет трескаться меньше, но полностью от растрескивания вы не избавитесь: особенно в регионах с суровыми зимами. В таких условиях лучше делать отмостку из щебня или гальки — проблем с растрескиванием не будет. Если позволяют средства — делают ее из плитки. Для суровых зим при правильно подобранных слоях подложки они стоят хорошо.
Вообще, на пучнистых грунтах желательно сделать дренаж, который будет отводить воду, стекающую с ленты. Это будет эффективное и надежное решение. Все остальные — только полумеры. Дренажную трубу располагают так, чтобы в нее попадала вода с покрытия.
Правила бетонирования отмостки
По периметру размеченной зоны устанавливается и закрепляется опалубка. Чаще всего доска достаточной высоты, закрепленная колышками и распорками.
Чтобы уменьшить растрескивание поверхности часто используют армирование. Для этого на готовый подстилающий слой раскладывают сетку из стальной проволоки с ячейкой 10-25 см.

Поверх сетки (если она есть) раскладывают обработанные антисептиками деревянные планки. Толщина планок 2,5 см, а обработать их можно горячей олифой. Эти планки — демпферные швы, которые не дадут бетону трескаться при изменениях температур.
Планки выставляются с сохранением уклона от дома. По ним потом «тянут» правило, выравнивая раствор.
Чтобы поверхность была прочной и ровной проводят железнение. Почти сразу после заливки, пока на поверхности еще стоит цементное молочко, бетон присыпают цементом (можно притрушивать несколько раз) и затирают мастерком или штукатурной теркой. Сверху формируется тонкая, но прочная, ровная и слегка блестящая поверхность. Она очень стойкая к истиранию.

Последний этап — уход за бетоном. Дорожку прикрывают влажной тканью. В течении недели ее регулярно смачивают (брызгают из шланга или лейки). Ткань должна оставаться влажной. Чтобы не мучиться с поливом, можно закрыть пленкой, но ее сложнее удержать на одном месте.
Бетон для отмостки
Для отмостки используют стандартный песчано-гравийный бетон. Мрака желательно не ниже М150. Можно и выше: чем выше марка, тем более прочным получится защитное покрытие. Пропорции составления раствора для отмостки можно выбрать из таблицы. Они даны для бетона марки М400 — не очень дорогого, по характеристикам нормально.

Размеры отмосток по СНиП
Основной параметр – это ширина отмостки. В своде норм и правил указывается, что этот размерный показатель зависит от нескольких факторов, а именно от:
- типа грунта на загородном участке;
- степени просадки почвы;
- ширины выступа карнизного свеса крыши;
- архитектурных особенностей здания.
Что касается зависимости от типа грунта, то здесь необходимо обозначить два вида почвы.
- Это грунты, устойчивые к деформационным нагрузкам. Здесь имеются в виду нагрузки от собственной массы. Степень просадки таких почв не превышает 50 мм.
- Грунты, которые восприимчивы к нагрузкам. Их степень просадки больше 50 мм.
Так вот если на загородном участке расположены грунты первой категории, то ширина отмостки должна быть в пределах 150 см. Если второй категории, то 200 см.
Определить тип грунта можно, передав почву на анализ. Или другой вариант – обратиться в геодезическую службу района.
Минимальная ширина отмостки по СНиП Источник ok.ru
Но есть в СНиПе так называемый минимальный параметр ширины. Он определен диапазоном 80-100 см
При этом важно учитывать ширину свеса крыши дома. То есть первый параметр должен быть больше второго на 20-30 см. Получается так, что стекающая с крыши вода должна попадать на отмостку и по ней удаляться подальше от фундамента здания
Получается так, что стекающая с крыши вода должна попадать на отмостку и по ней удаляться подальше от фундамента здания.
Но при этом в СНиПе указывается о пропорциях отмостки и здания, а также зданиях соседних. Необходимо строго следить за этими пропорциями, потому, к примеру, узкая дорожка вокруг дома может не вписаться в общий экстерьер участка в целом.
Узкая отмостка смотрится некрасиво Источник pinterest.com
Угол наклона отмостки
Переходим к не менее важному параметру – уклону отмостки. Именно от него зависит, как дождевая и такая вода будут отводиться от здания. В СНиПе четко обозначено, что минимальный угол наклона должен варьироваться в пределах от 2° до 3°
В своде также обозначен и другой показатель, связанный с уклоном. Это толщина сооружения около фундамента. Она должна быть равна 10-15 см. А толщина внешнего края – 5-10 см
В СНиПе четко обозначено, что минимальный угол наклона должен варьироваться в пределах от 2° до 3°. В своде также обозначен и другой показатель, связанный с уклоном. Это толщина сооружения около фундамента. Она должна быть равна 10-15 см. А толщина внешнего края – 5-10 см.
Оптимальный угол наклона отмостки Источник cokr54.ru
Но с толщиной отмостки не все так просто, поэтому разберем и этот размер.
Требования к толщине
В основу этого габаритного размера вкладывается марка бетона, используемого для заливки основы под облицовку. Чем она больше, тем меньше толщина. Но необходимо понимать, что бетонный слой – не единственный в конструкции отмостки. Здесь надо будет учитывать дополнительно песчано-гравийную подушку. А она обычно засыпается толщиною 5-15 см в зависимости от типа почвы на загородном участке. Чем мягче грунт, тем толще подушка.
Толщина окантовки зависит от толщины укладываемых слоев Источник pobudova.in.ua
Технология изготовления бетонной отмостки
Чтобы во время холодов бетон не растрескался, нужно выполнить деформационные швы
Поскольку в частном строительстве чаще всего защитное покрытие вокруг дома делают из бетона, мы подробно рассмотрим процесс изготовления:
- Прежде всего, территорию вокруг дома нужно разметить и вбить колышки по углам будущего покрытия.
- Затем по периметру здания снимается слой грунта высотой 25 см. Такая глубина оптимальная для отмостки из бетона. Если вы будете использовать другие материалы, то эта величина может быть иной.
- Чтобы предотвратить рост растений, грунт обрабатывается гербицидами.
- Далее по краю канавы устанавливаем опалубку из щитов или досок.
- Грунт на дне канавы нужно хорошо уплотнить. Поверх него выкладываем слой глины, чтобы дополнительно защитить подземные конструкции от влаги.
- После этого делаем песчаную прослойку высотой 10 см. Песок смачиваем водой и трамбуем.
- Затем делается засыпка из щебня. Высота слоя 60-70 мм.
- Чтобы бетон с лёгкостью выдержал нагрузки на растяжение и сжатие, укладываем армирующую сетку.
- В месте соприкосновения отмостки с цоколем обустраиваем компенсационный зазор. Этот шов нужен для защиты от деформации в случае усадки той или иной части конструкции. Ширина компенсационного зазора – 10-15 мм. Для предотвращения попадания в шов влаги туда закладывается мастика, битум или несколько слоёв рубероида.
- Теперь приступаем к заливке бетона. Поверхность выравниваем. Чтобы во время холодов бетон не растрескался, нужно выполнить деформационные швы. С этой целью с шагом 2-3 м устанавливаются деревянные рейки в одном уровне с поверхностью бетона. При этом рейки монтируются с необходимым уклоном от стен здания. Таким образом, они позволят вам контролировать заливку бетона с нужным уклоном.
- Первую неделю в процессе твердения бетонную поверхность нужно смачивать водой, чтобы не дать ей пересохнуть.
Также в нормативных документах регламентируется марка бетона по морозостойкости. Для выполнения этих работ можно использовать бетон не ниже 200 марки. Для контроля уклона отмостки в процессе изготовления стоит использовать уровень или нивелир.
Кроме описанного выше способа, нужный уклон отмостке можно придать так:
- Создать требуемый уклон при засыпке первого подстилающего слоя из песка и щебня. Для этого у стен здания насыпается больше материала.
- Сначала заливается более жидкий бетон, он сам разравнивается в горизонтальную плоскость. После его застывания готовится более густой бетонный состав, который выкладывается поверх первого слоя с уклоном по установленным деревянным рейкам. Рейки крепятся к опалубке.
https://youtube.com/watch?v=jRf4-k9kRrc
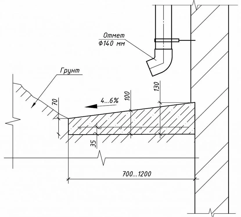
А я вот опасаюсь, что вода из водостока разрушит поверхность отмостки. Что мне делать?
Это правильные опасения. Нужно или организовать отвод воды в оборудованную систему дренажа фундамента, или сделать поперечные сточные канавки там, где установлены водосточные трубы.
Вот как сделан водоотвод у пользователя нашего форума с ником АлБут:
Водоприемные лотки под каждую трубу за кромкой отмостки заканчиваются дождеприемниками, из которых стоки потом собираются трубами в ливневку.
На FORUMHOUSE вы сможете прочесть статью о том, как сделать цоколь и отмостку с учетом конструктивных особенностей дома, посмотрите наш большой фотоотчет по дренажу, посмотреть варианты правильного пирога теплой отмостки. Посмотрите видео про утепление цоколя и отмостки – там очень наглядно показаны все этапы.
Бетонная отмостка это. Как правильно сделать отмостку из бетона?

Даже прочнейший фундамент не может долго противостоять влаге и перепадам температуры. Влага быстро приводит к тому, что нагрузка на дренажную систему и гидроизоляцию дома увеличивается. Чтобы этого избежать, устанавливают отмостку из бетона. Сделать это довольно просто и самостоятельно. Именно этому будет посвящена эта статья.


Помимо выполнения основных функций (сохранение конструкции от разрушительного влияния влаги), покрытие становится зоной для пешеходов. К тому же отмостка придает частному дому особую красоту и законченный вид. Однако перед непосредственной заливкой отмостки нужно проанализировать особенности конструкции и рекомендации по её установке.


Устройство
Бетонные отмостки характеризуются конструкционной простотой, и для самостоятельного изготовления будут необходимы нижеописанные материалы.
- Подушка (пирог). Необходимо провести подсыпку перед сливанием раствора в конструкционные пазы. Эту роль часто выполняют песок (крупной и средней зернистости), щебенка, гравий мельчайшего диаметра или смесь гравия и песка. Если в качестве подложки использовать мелкий песок, может произойти большая усадка. Из-за сильной усадки конструкция может пойти трещинами. Самым надежным вариантом является подсыпка из двух слоев: сначала засыпается щебёнка или гравий, которые уплотняют грунт, а потом всыпается песок.
- Укладка арматуры. Арматурная сетка в конструкции обеспечивает дополнительную прочность. Размеры пазов обычно варьируются – или 30 на 30 см или периметр в 50 на 50 см. Диаметр арматуры составляет 6-8 мм, однако, базируется всё на разновидности почвы.
- Опалубка. Конструкция обязательно должна быть дополнена направляющими из прямых досок. Опалубку устанавливают по всей площади покрытия. Ширина направляющих – 20-25 мм. Опалубка позволяет ликвидировать растекание состава.
- Раствор бетона. Создание конструкции требует использования бетона особого состава.
Устройство отмостки СНиП. Отмостка СНиП
Правила устройства отмостки регулируются целым рядом нормативных документов, в каждом из которых прописано множество требований. Поэтому искать СНиП на отмостку как единственные нормы нет смысла: если хотите делать все с соблюдением требований, то придется соблюдать их все. В свое время я собрал довольно большой ряд выдержек из требований к устройству отмосток для подачи в суд на службу заказчика, ибо ее представители грубо нарушили правила составления сметной документации, отразив в ней как неверные, так и несуществующие значения. Разберем все последовательно.
Общие требования к основаниям (по СНиП 2.02.01 83)
По СНиП 2.02.01 83 , который нередко определяют как СНиП на отмостку, регулируются только общие моменты устройства оснований зданий и сооружений, включая расчеты по деформации, воздействие подземных вод и прочие подобные вещи. Соотвественно, СНиП 2.02.01 83 можно руководствоваться для общих расчетов и выполнения основных требований по грунтам и пр. Однако конкретные значения данный документ не определяет, в связи с чем рекомендовать его как единственный не представляется возможным.
Общие требования по благоустройству территорий (по СНиП III-10-75)
«Отмостки по периметру зданий должны плотно примыкать к цоколю здания. Уклон отмосток должен быть не менее 1 % и не более 10%.
В местах, недоступных для работы механизмов, основание под отмостки допускается уплотнять вручную до исчезновения отпечатков от ударов трамбовки и прекращения подвижек уплотняемого материала.
Наружная кромка отмосток в пределах прямолинейных участков не должна иметь искривлений по горизонтали и вертикали более 10 мм. Бетон отмосток по морозостойкости должен отвечать требованиям, предъявляемым к дорожному бетону»
Соотвественно пункту выше, требования к бетону для устройства отмосток должны удовлетворять «ГОСТ 9128-97*. Смеси асфальтобетонные дорожные, аэродромные и асфальтобетон. Технические условия» и «ГОСТ 7473-94. Смеси бетонные. Технические условия».
Требования служб технического надзора (наставления по СНиП)
Изучим еще один нормативный документ, который называется «Схемы операционного контроля качества строительных, ремонтно-строительных и монтажных работ». Документы данного типа используются службами технического надзора в качестве наставлений для выполнения обследования объектов и контроля качества производства работ:
1. Технические требования : согласно СНиП 3.04.01-87 табл. 20, СНиП III-10-75 п.
Теплоизоляция отмостки
Как мы уже говорили в начале этой статьи, на пучинистых грунтах нужно выполнить утепление отмостки. Пучинистый грунт насыщается водой, замерзает и неравномерно вспучивается и так же неравномерно давит на конструкции дома, разрушая их. Утеплитель же не дает грунту замерзнуть, тем самым предотвращает его пучение. Для этих целей рекомендуется использовать теплоизоляционный материал, который не впитывает влагу – экструдированный пенополистирол. Он укладывается между подстилающим слоем и покрытием. На утеплитель не должно быть больших точечных нагрузок, поэтому покрытие лучше использовать из бетона, а также плитки или булыжника по песчаной подготовке. А щебень, гравий, галька, керамзит для покрытия такой отмостки не рекомендуется.
Утепление отмостки
Параметры
С длиной отмостки понятно: периметр сооружения за исключением крыльца.
Ширина и глубина определяются рядом факторов, индивидуальных для каждого здания. Выбор параметров зависит от:
- конструкции строения;
- глубины промерзания и характеристики грунтов;
- интенсивности хождения или проезда по отмостке;
- материала изготовления.
Ширина
Требования к ширине отмостки весьма примерны. Основное условие: она должна выступать за край кровли не менее чем на 20 см. Как правило, максимальная ширина не превышает 0,6 — 1 метра.
Есть один нюанс для просадочных грунтов, — на них ширина отмостки составляет минимум 1 метр.
Ещё один практический ориентир: ширина определяется с учётом расположения водостоков, конструкции дренажной системы.
Глубина
Минимальный показатель глубины заложения отмостки, – 7 см для монолитного бетона и 15 см для иных материалов.
При высоком уровне пучения грунта к максимальной расчётной глубине стоит добавить ещё 10-15 см.
Угол наклона
Понятно, что отмостка должна иметь уклон в сторону от дома для отвода воды от фундамента. Угол наклона варьируется от 1 до 10 градусов. Норма – 2-30, — но это зависит от планируемой эксплуатации отмостки в качестве дорожки и её общей ширины.
Технический зазор — так принято называть расстояние между фундаментом и отмосткой. Другая формулировка – компенсационный шов. Обычно его толщина составляет от 5 до 10 мм.
Он необходим для смещения конструкции вместе с грунтом, — в противном случае её функции сводятся к простому водостоку.
Заполняется зазор, как правило, герметиком, реже – гравием, песком.
Ремонт отмостки при капитальном ремонте фасада МКД
Что уже пробовали для решения этого вопроса: перечень работ по капитальному ремонту зданий и сооружений Восстановление существующей отмостки вокруг здания (более 20% общей площади отмостки) (Постановление Госстроя СССР от 29.12.1973 N 279), а согласно Методическим рекомендациям по формированию состава работ по капитальному ремонту многоквартирных домов, финансируемых за счет средств, предусмотренных Федеральным законом от 21 июля 2007 года N 185-ФЗ «О Фонде содействия реформированию жилищно-коммунального хозяйства» ремонт отмостки относится Ремонт подвальных помещений, относящихся к общему имуществу в многоквартирных домах (Раздел IV). Относится ли к капитальному ремонту фундамента ремонт омостки?
Согласно предписанию требуется устранить неисправное и частичное отсутствие отмостки по периметру дома, в тоже время необходимо выполнить капитальный ремонт фасада (требуется штукатурка и покраска более 50 %). Можно ли попробовать отнести работы по ремонту отмостки к капитальному ремонту фасада?
Плюсы и минусы бетонной отмостки
Покрытие из бетона пользуется большой популярностью ввиду небольших финансовых затрат на возведение.
У конструкции из бетона есть следующие преимущества:
- низкая стоимость;
- высокая долговечность эксплуатации, прочность надежность;
- простота монтажа и ремонта при необходимости;
- возможность самостоятельной укладки.
Без минусов не обошлось. У отмостки из бетона выделяют несколько недостатков:
не эстетичный внешний вид;
возможность частых растрескиваний при нарушении технологии укладки, которые приведут к реставрации покрытия;
необходимость в подготовки опалубки;
долгое застывание
В процессе застывания в бетонную смесь можно случайно вступить по неосторожности, что приведет к повторному выполнению работ;
трудоемкость монтажа. Несмотря на простоту укладки, придется учитывать ряд моментов, к примеру, добиваться идеально ровной и гладкой поверхности с помощью строительного уровня.
Таким образом, наличие отмостки вдоль фундамента здания крайне важно. Это покрытие выполняет ряд немаловажных функций, описанных выше
Уклон
Уклон отмостки согласно СП должен быть не меньше 10 промилле от сооружения. Иными словами величина уклона равна 10 мм на 1 м ширины. Для обеспечения эффективного отведения поверхностных вод от здания уклон повышают до 20-30 мм на 1 м ширины.
Также нормируется и максимальный уклон отмостки. Он не должен превышать 100 мм на метр. Слишком большой уклон будет способствовать тому, что быстро текущие потоки воды станут размывать внешний край покрытия и вызывать его постепенное разрушение.
Иногда по внешнему краю покрытия прокладываются водоприемные желоба. Они идут по контуру отмостки с определённым уклоном, что способствует отведению осадочных и талых вод от стен здания прямо в ливневую канализационную систему.





























